Property Details
After being left on the market by an agent for far too long with no result, my team and I were contacted by the owner for help.
Always ready to enjoy a challenge, the whole team helped to secure a solid result and a record result for the building.
Stuck on the market with no forward plan from your agent? Agent missing in-action and left with an inexperienced assistant? Or just not happy and feel stuck? Simple! Call me, and with the amount of local knowledge of my combined team, we secure you the best result in any market. Richard Perry 0418 863 969
Quiet rear location, 103sqm, LUG, and nothing to spend!
Whisper quiet at the rear of the complex via a separate entryway from Wattle Lane, this immaculately renovated home perfectly located in a separate building of just 4 apartments, is an ideal choice for the first home buyer and investor alike.
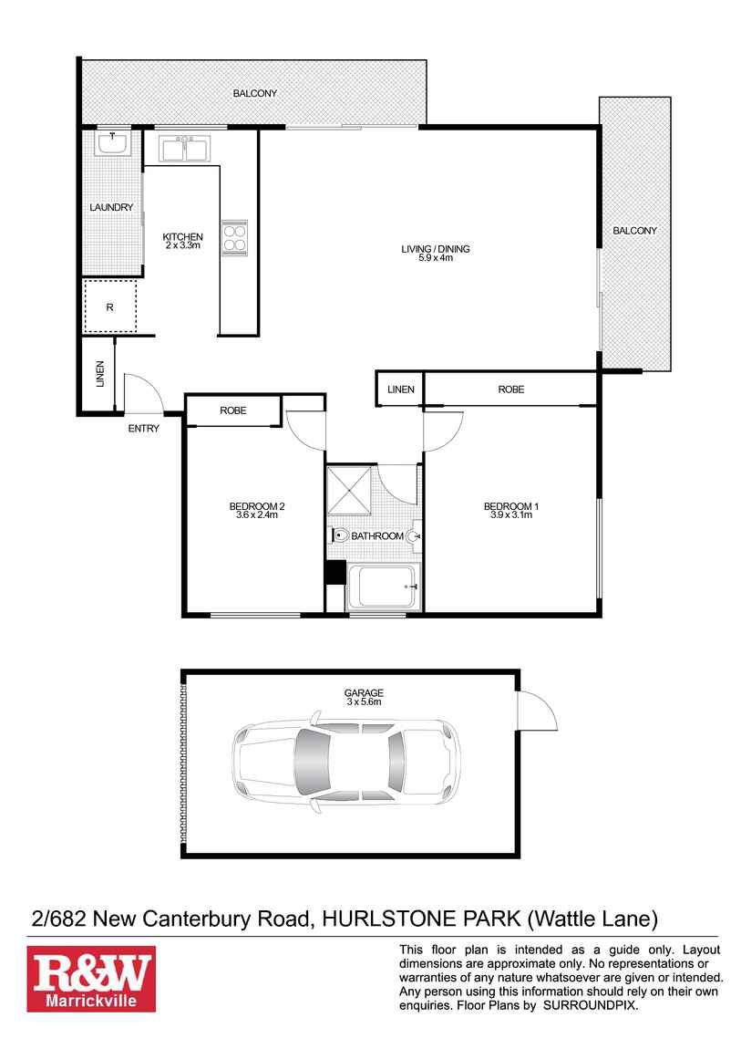
Set securely in an elevated position of this two storey building with sweeping district views, this is an affordable property set over 84sqm with an additional 19sqm of lock-up garage with internal access directly from the foyer.
Displaying:
- Large contemporary living spaces, quiet and light filled with two balconies
- A spacious family sized kitchen with an abundance of storage & internal laundry
- Upgraded fully tiled bathroom, with vanity storage, separate shower and bathtub
- Two sizable bedrooms both with built-in wardrobes and soft carpeting
- Excellent floorplan with living and sleeping areas offset; naturally bright & airy
- Move in ready & easily rented in a nothing to spend low maintenance building
Private with no one looking in at you, and a view across the district, you'll be surprised at the value and affordability whilst all within an easy stroll to parkland, local schools, cafes and shopping plus public transport is an easy stroll away with city bound buses and Hurlstone Park railway station easily accessible.
Make a time to view, and be as surprised at what your money can get you on a limited budget! Inspect Today!
Richard Perry 0418 863 969
richardp@randw.com.au
www.facebook.com/randwmarrickville


























