Property Details
SOLD AT AUCTION $1,403,000 - ARIS DENDRINOS 0412 465 567
If you have a 3 bedroom property you are considering to sell, you may be surprised at the results WE are gaining for our owners - Call Aris Dendrinos on 0412 465 567 for a confidential chat.
"Classic oversized Inner West terrace in the heart of the village"
All the fantastic facilities of the vibrant Leichhardt community are on offer with this delightfully renovated well established full brick residence set over two levels of accommodation.
- Comprises three double bedrooms (one with ensuite)
- Glorious tree lined street views from the lovely Juliet baclony
- Traditional front sitting room with attractive open plan living and dining spaces
- Modern kitchen with stainless steel dishwasher and gas stove
- Two big bright bathrooms (one on each level)
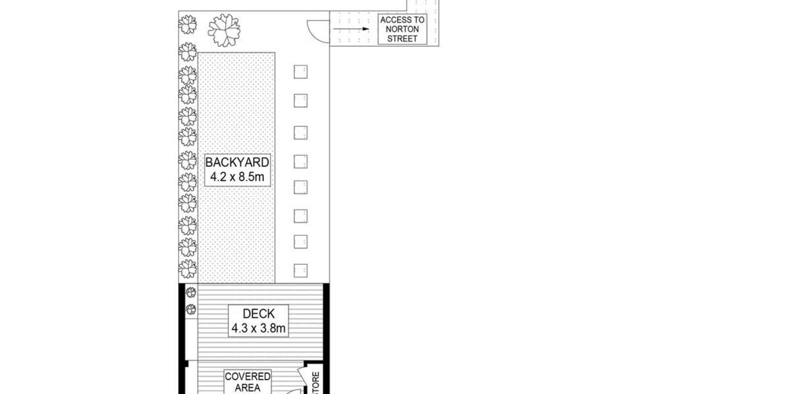
- Private east facing rear garden bathed in glorious morning sun
- Stunning timber deck that's perfect for entertaining
- Separate courtyard that can double as a lovely al fresco outdoor area
- Numerous original features from ornate fireplaces to high period ceilings
- Rear pathway access directly to Norton Street and all local eateries.
- 650 metre (7 mins) walk to Leichhardt Public School
- 700 metre (8 mins) walk to Fort Street selective High school
For those craving that ultra convenient Inner West lifestyle in a quiet residential location this is it !
Aris Dendrinos 0412 465 567
arisd@randw.com.au
www.facebook.com/randwmarrickville


































